ΟΛΥΜΠΟΥ 23, ΒΡΙΛΗΣΣΙΑ
ΠΕΡΙΓΡΑΦΗ:
- Ανέγερση δύο τριώροφων Οικοδομών με Υπόγειο.
- Ενεργειακή κλάση Α.
- Κατασκευή υψηλών προδιαγραφών.
- Παράδοση υπό κατασκευή.
DESCRIPTION:
- Construction of two three-story buildings with a basement.
- Energy class A.
- High standard construction.
- Delivery under construction.


ΔΙΑΘΕΣΙΜΑ ΑΚΙΝΗΤΑ ΠΡΟΣ ΠΩΛΗΣΗ
-
(AVAILABLE APARTMENTS FOR SALE)
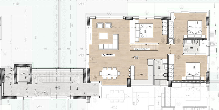
GROUNDFLOOR 1
MAISONETTE 146 m2
It consists of 3 bedrooms, kitchen, living room, sitting room, dining room, 2 bathrooms & a basement Play Room. There is the possibility of exclusive use of the garden as well as the possibility of a swimming pool. It has parking, wooden floors, thermally insulated frames, window screens, energy-efficient glazing, external thermal insulation shell, Autonomous heating, alarm standby & power supply for electric vehicle charger.
ΙΣΟΓΕΙΟ 1
ΜΕΖΟΝΕΤΑ 146 Τ.Μ.
Αποτελείται από 3 υπνοδωμάτια, κουζίνα, σαλόνι, καθιστικό, τραπεζαρία, 2 μπάνια & υπόγειο Play Room. Υπάρχει δυνατότητα αποκλειστικής χρήσης κήπου ως επίσης και δυνατότητα πισίνας. Διαθέτει θέση πάρκινγκ, ξύλινα πατώματα, θερμομονωτικά κουφώματα, σίτες, ενεργειακούς υαλοπίνακες, κέλυφος εξωτερικής θερμομόνωσης, αυτόνομη θέρμανση, αναμονή συναγερμού & παροχή για φορτιστή ηλεκτρικού οχήματος.

460.000€
GROUNDFLOOR 3
APARTMENT 109 m2
It consists of 2 bedrooms, a living room, a kitchen-dining room, a bathroom and a wc. It has parking, wooden floors, thermally insulated frames, window screens, energy-efficient glazing, external thermal insulation shell, Autonomous heating, alarm standby & power supply for electric vehicle charger.
ΙΣΟΓΕΙΟ 3
ΔΙΑΜΕΡΙΣΜΑ 109 Τ.Μ.
Αποτελείται από 2 υπνοδωμάτια, καθιστικό, κουζίνα, τραπεζαρία, μπάνιo και wc. Διαθέτει θέση πάρκινγκ, ξύλινα πατώματα, θερμομονωτικά κουφώματα, σίτες, ενεργειακούς υαλοπίνακες, κέλυφος εξωτερικής θερμομόνωσης, αυτόνομη θέρμανση, αναμονή συναγερμού & παροχή για φορτιστή ηλεκτρικού οχήματος.

435.000€
GROUNDFLOOR 5
MAISONETTE 146 m2
It consists of 3 bedrooms, kitchen, living room, sitting room, dining room, 2 bathrooms & a basement Play Room. There is the possibility of exclusive use of the garden as well as the possibility of a swimming pool. It has parking, wooden floors, thermally insulated frames, window screens, energy-efficient glazing, external thermal insulation shell, Autonomous heating, alarm standby & power supply for electric vehicle charger.
ΙΣΟΓΕΙΟ 5
ΜΕΖΟΝΕΤΑ 146 Τ.Μ.
Αποτελείται από 3 υπνοδωμάτια, κουζίνα, σαλόνι, καθιστικό, τραπεζαρία, 2 μπάνια & υπόγειο Play Room. Υπάρχει δυνατότητα αποκλειστικής χρήσης κήπου ως επίσης και δυνατότητα πισίνας. Διαθέτει θέση πάρκινγκ, ξύλινα πατώματα, θερμομονωτικά κουφώματα, σίτες, ενεργειακούς υαλοπίνακες, κέλυφος εξωτερικής θερμομόνωσης, αυτόνομη θέρμανση, αναμονή συναγερμού & παροχή για φορτιστή ηλεκτρικού οχήματος.

460.000€
GROUNDFLOOR 7
MAISONETTE 149 m2
It consists of 3 bedrooms, kitchen, living room, sitting room, dining room, bathroom, wc & a basement Play Room. There is the possibility of exclusive use of the garden as well as the possibility of a swimming pool. It has parking, wooden floors, thermally insulated frames, window screens, energy-efficient glazing, external thermal insulation shell, Autonomous heating, alarm standby & power supply for electric vehicle charger.
ΙΣΟΓΕΙΟ 7
ΜΕΖΟΝΕΤΑ 149 Τ.Μ.
Αποτελείται από 3 υπνοδωμάτια, κουζίνα, σαλόνι, καθιστικό, τραπεζαρία, μπάνιo, wc & υπόγειο Play Room. Υπάρχει δυνατότητα αποκλειστικής χρήσης κήπου ως επίσης και δυνατότητα πισίνας. Διαθέτει θέση πάρκινγκ, ξύλινα πατώματα, θερμομονωτικά κουφώματα, σίτες, ενεργειακούς υαλοπίνακες, κέλυφος εξωτερικής θερμομόνωσης, αυτόνομη θέρμανση, αναμονή συναγερμού & παροχή για φορτιστή ηλεκτρικού οχήματος.

470.000€
GROUNDFLOOR 8
MAISONETTE 129 m2
It consists of 2 bedrooms, kitchen, living room, sitting room, dining room, bathroom, wc & a basement Play Room. There is the possibility of exclusive use of the garden as well as the possibility of a swimming pool. It has parking, wooden floors, thermally insulated frames, window screens, energy-efficient glazing, external thermal insulation shell, Autonomous heating, alarm standby & power supply for electric vehicle charger.
ΙΣΟΓΕΙΟ 8
ΜΕΖΟΝΕΤΑ 129 Τ.Μ.
Αποτελείται από 2 υπνοδωμάτια, κουζίνα, σαλόνι, καθιστικό, τραπεζαρία, μπάνιο, wc & υπόγειο Play Room. Υπάρχει δυνατότητα αποκλειστικής χρήσης κήπου ως επίσης και δυνατότητα πισίνας. Διαθέτει θέση πάρκινγκ, ξύλινα πατώματα, θερμομονωτικά κουφώματα, σίτες, ενεργειακούς υαλοπίνακες, κέλυφος εξωτερικής θερμομόνωσης, αυτόνομη θέρμανση, αναμονή συναγερμού & παροχή για φορτιστή ηλεκτρικού οχήματος.

391.000€
1st FLOOR
APARTMENT 104 m2
It consists of 3 bedrooms, a living room, a kitchen-dining room, a bathroom and a wc. It has parking, wooden floors, thermally insulated frames, window screens, energy-efficient glazing, external thermal insulation shell, Autonomous heating, alarm standby & power supply for electric vehicle charger.
1ος ΟΡΟΦΟΣ
ΔΙΑΜΕΡΙΣΜΑ 104 Τ.Μ.
Αποτελείται από 3 υπνοδωμάτια, καθιστικό, κουζίνα, τραπεζαρία, μπάνιo και wc. Διαθέτει θέση πάρκινγκ, ξύλινα πατώματα, θερμομονωτικά κουφώματα, σίτες, ενεργειακούς υαλοπίνακες, κέλυφος εξωτερικής θερμομόνωσης, αυτόνομη θέρμανση, αναμονή συναγερμού & παροχή για φορτιστή ηλεκτρικού οχήματος.

425.000€
1st - 2nd
FLOOR
MAISONETTE 163 m2
It consists of 5 bedrooms, a living room, a kitchen-dining room and threee bathrooms. It has parking, wooden floors, thermally insulated frames, window screens, energy-efficient glazing, external thermal insulation shell, Autonomous heating, alarm standby & power supply for electric vehicle charger.
1ος - 2ος
ΟΡΟΦΟΣ
ΜΕΖΟΝΕΤΑ 163 Τ.Μ.
Αποτελείται από 5 υπνοδωμάτια, καθιστικό, κουζίνα, τραπεζαρία και 3 μπάνια. Διαθέτει θέση πάρκινγκ, ξύλινα πατώματα, θερμομονωτικά κουφώματα, σίτες, ενεργειακούς υαλοπίνακες, κέλυφος εξωτερικής θερμομόνωσης, αυτόνομη θέρμανση, αναμονή συναγερμού & παροχή για φορτιστή ηλεκτρικού οχήματος.

675.000€

1st - 2nd
FLOOR
MAISONETTE 132 m2
It consists of 4 bedrooms, a living room, a kitchen-dining room, 2 bathrooms and a wc. It has parking, wooden floors, thermally insulated frames, window screens, energy-efficient glazing, external thermal insulation shell, Autonomous heating, alarm standby & power supply for electric vehicle charger.
1ος - 2ος
ΟΡΟΦΟΣ
ΜΕΖΟΝΕΤΑ 132 Τ.Μ.
Αποτελείται από 4 υπνοδωμάτια, καθιστικό, κουζίνα, τραπεζαρία, 2 μπάνια και wc. Διαθέτει θέση πάρκινγκ, ξύλινα πατώματα, θερμομονωτικά κουφώματα, σίτες, ενεργειακούς υαλοπίνακες, κέλυφος εξωτερικής θερμομόνωσης, αυτόνομη θέρμανση, αναμονή συναγερμού & παροχή για φορτιστή ηλεκτρικού οχήματος.

544.000€

1st - 2nd
FLOOR
MAISONETTE 163 m2
It consists of 5 bedrooms, a living room, a kitchen-dining room and 3 bathrooms. It has parking, wooden floors, thermally insulated frames, window screens, energy-efficient glazing, external thermal insulation shell, Autonomous heating, alarm standby & power supply for electric vehicle charger.
1ος - 2ος
ΟΡΟΦΟΣ
ΜΕΖΟΝΕΤΑ 163 Τ.Μ.
Αποτελείται από 5 υπνοδωμάτια, καθιστικό, κουζίνα, τραπεζαρία και 3 μπάνια. Διαθέτει θέση πάρκινγκ, ξύλινα πατώματα, θερμομονωτικά κουφώματα, σίτες, ενεργειακούς υαλοπίνακες, κέλυφος εξωτερικής θερμομόνωσης, αυτόνομη θέρμανση, αναμονή συναγερμού & παροχή για φορτιστή ηλεκτρικού οχήματος.


675.000€
1st - 2nd
FLOOR
MAISONETTE 135 m2
It consists of 4 bedrooms, kitchen, living room, sitting room, office, 2 bathrooms & 1 w.c. . It has parking, wooden floors, thermally insulated frames, window screens, energy-efficient glazing, external thermal insulation shell, Autonomous heating, alarm standby & power supply for electric vehicle charger.
1ος - 2ος
ΟΡΟΦΟΣ
ΜΕΖΟΝΕΤΑ 135 Τ.Μ.
Αποτελείται από 4 υπνοδωμάτια, κουζίνα, σαλόνι, καθιστικό, γραφείο, 2 μπάνια & 1 w.c. Διαθέτει θέση πάρκινγκ, ξύλινα πατώματα, θερμομονωτικά κουφώματα, σίτες, ενεργειακούς υαλοπίνακες, κέλυφος εξωτερικής θερμομόνωσης, αυτόνομη θέρμανση, αναμονή συναγερμού & παροχή για φορτιστή ηλεκτρικού οχήματος.


555.000€
2nd FLOOR
APARTMENT 102 m2
It consists of 3 bedrooms, kitchen, living room, sitting room, dining room, 1 bathroom & 1 w.c. It has parking, wooden floors, thermally insulated frames, window screens, energy-efficient glazing, external thermal insulation shell, Autonomous heating, alarm standby & power supply for electric vehicle charger.
2ος ΟΡΟΦΟΣ
ΔΙΑΜΕΡΙΣΜΑ 102 Τ.Μ.
Αποτελείται από 3 υπνοδωμάτια, κουζίνα, σαλόνι, καθιστικό, τραπεζαρία, 1 μπάνιο & 1 w.c. . Διαθέτει θέση πάρκινγκ, ξύλινα πατώματα, θερμομονωτικά κουφώματα, σίτες, ενεργειακούς υαλοπίνακες, κέλυφος εξωτερικής θερμομόνωσης, αυτόνομη θέρμανση, αναμονή συναγερμού & παροχή για φορτιστή ηλεκτρικού οχήματος.

Μη διαθέσιμο
(Νot available)
2nd FLOOR
APARTMENT 92 m2
It consists of 2 bedrooms, kitchen, living room, sitting room, dining room, 1 bathroom & 1 w.c. It has parking, wooden floors, thermally insulated frames, window screens, energy-efficient glazing, external thermal insulation shell, Autonomous heating, alarm standby & power supply for electric vehicle charger.
2ος ΟΡΟΦΟΣ
ΔΙΑΜΕΡΙΣΜΑ 92 Τ.Μ.
Αποτελείται από 2 υπνοδωμάτια, κουζίνα, σαλόνι, καθιστικό, τραπεζαρία, 1 μπάνιο & 1 w.c. Διαθέτει θέση πάρκινγκ, ξύλινα πατώματα, θερμομονωτικά κουφώματα, σίτες, ενεργειακούς υαλοπίνακες, κέλυφος εξωτερικής θερμομόνωσης, αυτόνομη θέρμανση, αναμονή συναγερμού & παροχή για φορτιστή ηλεκτρικού οχήματος.

385.000€
ΤΡΙΣΔΙΑΣΤΑΤΕΣ ΑΠΕΙΚΟΝΙΣΕΙΣ
~ 3D RENDERS ~






